Apartament 2+1 Në Shitje në Ish fusha aviacionit, Tiranë - 176,000€ | 92.65 m²

176,000 €

For Sale
Description

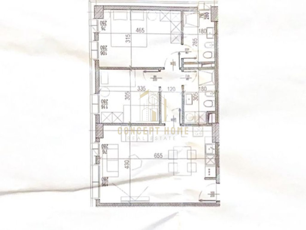
Shitet apartament 2+1 tek Fusha e Aviacionit

Siperfaqe bruto: 92.65 m2
Siperfaqe neto : 75.55m2
Perfundon ne Vitin 2027
Apartamenti ndodhet ne katin e 3 banim

Apartamenti organizohet ne:
- Ambient ndenjeje dhe gatimi
- 2 dhoma gjumi
- 1 Tualet
- Ballkon

Vendndodhja: Fusha e Aviacionit, Riverside Residence
Cmimi per shitje: 176.000 Euro

Property details
  • Property ID: CHK3505
  • Property Type: Apartment
  • Property status: New
  • Price: 176,000 €
  • Rooms: 3
  • Bedrooms: 2
  • Baths: 1
  • Interior area: 93 m2
  • Floor: 3